物件情報
PROPERTY
物件情報

【売買・売主】野田市野田 売地全2区画

【売買/売主】荒川区西日暮里 売地

【売買・売主】千葉市中央区松波 売地全2区画

【売買/売主】高洲住宅第2団地第7-18号棟

【売買/売主】ライオンズマンション市川

【売買/売主】川崎市幸区小倉 売地

【売買/売主】山梨県南アルプス市

1棟マンション「ADLU EBARA」

【売買/売主】川崎市川崎区殿町 土地

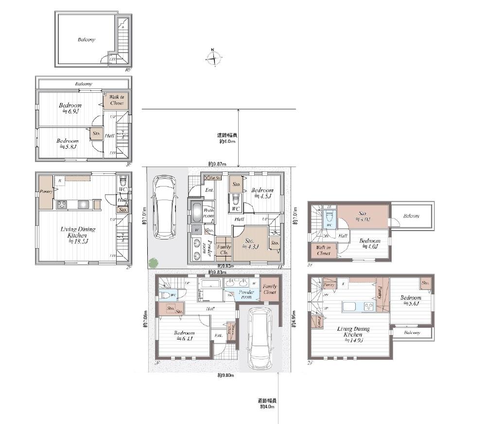
【売買/売主】世田谷区松原 新築建売

【売買/売主】大田区池上 フルリノベーション戸建

【売買/売主】ヨコハマタワーズ EAST2309号室

【売買/売主】湘南ライフタウン駒寄45号棟2階

【売買・売主】さいたま市見沼区大字御蔵 中古戸建

【売買・売主】川崎市中原区刈宿 中古戸建

【売買/売主】文京区千駄木 新築建売

【売買・売主】市川市香取1丁目 2区画売地

【売買・売主】ジャルダン目黒/区分

【売買・売主】品川区豊町借地権/売地

【売買・売主】千葉県八千代市勝田台/売地